陶瓷闸阀
- 销售:021-32051999
- 销售:021-32050777
- 传真:021-66099555
详情介绍
- 产品介绍
- 服务承诺
- 订货流程
Z643TC气动单闸板陶瓷闸阀/ Z644TC气动双闸板陶瓷闸阀用于电厂干灰系统仓泵进料阀,可用于高硬度的颗粒介质,也可用于矿山、造纸、化工等各类有磨损的干粉尘、水蒸气的官道上作启闭之用。公称压力1.0MPa,适应温度≤150℃。
密封面采用硬密封与介质接触的部分均为结构陶瓷材料,其化学稳定性及硬度高,使用寿命是普通材料阀门的510倍。因此具有高的耐磨损、耐腐蚀、耐冲蚀性能,且隔热性好、热膨胀小,所以本阀为用户带来高的经济利益。
本阀料口全流通无阻挡物,有压缩空气自动吹堵装置,卡灰、积灰现象少。
本阀采用曾韧结构陶瓷密封,机械强度高耐磨性能好使用寿命长。结构紧凑可任意角度安装。
![]() | ![]() |
| 单闸板陶瓷闸阀 | 双闸板陶瓷闸阀 |
陶瓷闸阀 结构特点
1、 以气缸为驱动装置,直接推动闸板上下运动,启闭速度快。
2、 双闸板间采用浮动连接,在介质压力作用下形成可靠的单向密封。同时浮动连接可令闸板启闭时因轴线不同心而旋转上升,使闸板与阀座间的磨擦纹路均匀分布,不会产生线装磨损,大大提高使用寿命,
3、 阀体及闸板密封面衬耐磨陶瓷,耐磨性能优良。
4、 体积小,便于运输,安装和维护。
陶瓷闸阀 工作原理
当气缸通过阀杆带动闸板下行时,闸板与阀体密封面吻合,将通道切断,即为关闭;反之则为开启。
陶瓷闸阀 安装、使用与保养
1、 安装前应将阀门清洗干净,并清理在运输过程中可能造成的缺陷。
2、 核对阀门上的标识及铭牌是否符合使用要求。
3、 本阀阀门可安装在任意角度的管道上。
4、 本阀门运行时应全开或全关,不能做节流阀使用,否则密封面将被冲刷导致加速磨损。
5、 若长期存放,应存在于干燥通风的室内,定期检查,防止生锈。
6、 运输过程中防止磕碰。
陶瓷闸阀 应用规范
单闸板陶瓷闸阀
设计与制造 | JB/T 8691 | |
连接端尺寸 | 结构长度 | 厂商标准 |
法兰尺寸 | 厂商标准 | |
检验与试验 | GB/T JB/T8691 | |
材料 | 碳钢 | GB/T 12229 |
标志 | GB/T 12220 | |
供货 | GB/T 12252 | |
双闸板陶瓷闸阀
设计与制造 | GB/T 12224 | |
连接端尺寸 | 结构长度 | 厂商标准 |
法兰尺寸 | JB/T 79.1 | |
检验与试验 | GB/T 9092 | |
材料 | 碳钢 | GB/T 12229 |
不锈钢 | GB/T 12230 | |
标志 | GB/T 12220 | |
供货 | GB/T 12252 | |
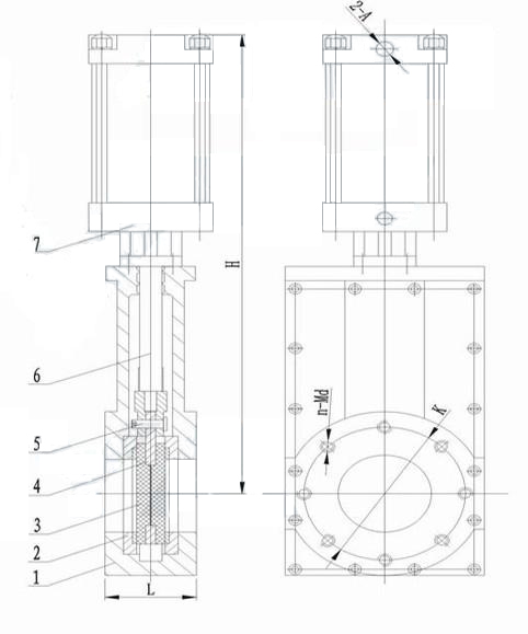
单闸板陶瓷闸阀 主要零件材料
序号 | 名称 | 材料 | 序号 | 名称 | 材料 |
1 | 阀体 | WCB | 5 | 销轴 | GB/T 882 |
2 | 阀座 | A 105+工程陶瓷 | 6 | 阀杆 | Q235+镀铬 |
3 | 阀板 | 合金钢+工程陶瓷 | 7 | 气动装置 |

单闸板陶瓷闸阀 主要外形尺寸
DN | PN(10kg) | L | K | H | n-Md | 气缸进气孔2-A |
50 | 10 | 100 | 125 | 320 | 4-M16 | 2-G1/4 |
65 | 100 | 145 | 345 | 4-M16 | 2-G1/4 | |
80 | 100 | 160 | 380 | 8-M16 | 2-G1/4 | |
100 | 100 | 180 | 440 | 8-M16 | 2-G1/4 | |
125 | 100 | 210 | 465 | 8-M16 | 2-G1/4 | |
150 | 100 | 240 | 620 | 8-M20 | 2-G1/4 | |
200 | 100 | 295 | 650 | 8-M20 | 2-G1/4 |
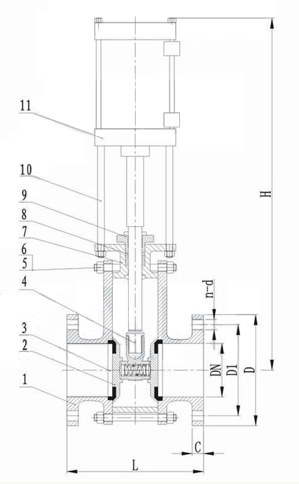
双闸板陶瓷闸阀 主要零件材料
序号 | 名称 | 材料 | 序号 | 名称 | 材料 |
1 | 阀体 | WCB | 7 | 中阀体 | WCB |
2 | 阀板 | 复合工程陶瓷 | 8 | 填料 | 柔性石墨 |
3 | 阀座 | 复合工程陶瓷 | 9 | 填料压盖 | 2Cr13 |
4 | 阀杆 | 2Cr13 | 10 | 支架 | Q235 |
5 | 双头螺栓 | 35CrMoVA | 11 | 气动装置 | |
6 | 螺母 | 25 | |||

双闸板陶瓷闸阀 主要外形尺寸
DN | PN(10kg) | L | D | D1 | C | H | n-d |
50 | 10 | 200 | 160 | 125 | 16 | 520 | 4-φ18 |
65 | 220 | 180 | 145 | 18 | 595 | 4-φ18 | |
80 | 240 | 195 | 160 | 20 | 635 | 8-φ18 | |
100 | 280 | 215 | 180 | 20 | 630 | 8-φ18 | |
125 | 300 | 245 | 210 | 22 | 715 | 8-φ18 | |
150 | 320 | 280 | 240 | 24 | 840 | 8-φ23 | |
175 | 320 | 310 | 270 | 26 | 885 | 8-φ23 | |
200 | 350 | 335 | 295 | 26 | 1155 | 8-φ23 | |
250 | 400 | 405 | 350 | 30 | 1400 | 8-φ23 | |
300 | 450 | 460 | 400 | 30 | 1800 | 12-φ23 |
良好的品质、优良的服务 奇高为你创造更多价值!
“奇高阀门”的期望,不断提升服务质量,精益求精,“真诚的服务”是“奇高”永恒的主题。“奇高”严格按照IS09001-2000 质量体系认证要求,质量严格把关, 责任到人,确保生产、销售、服务的健康运行。加强与用户沟通,竭诚为广大客户提供优良产品,贴心服务。特此我厂做出以下承诺:
产品标准:
产品严格按照中国GB、HG 标准和美国API等标准设计、制造、验收。密封面硬度达到国家规定要求,宽度超过国家标准。
售前服务:
产品介绍,技术交流,非标产品设计,疑难解答。
售中服务:
守信合同,及时供货,随时保持与客户联系。 对特殊或复制的产品,我厂安排技术人员对用户进行产品使用、故障排除
售后服务:
1、“奇高”牌产品品质期为自出厂起12个月,实行“三包”服务(包退、包换、保修)。
2、产品在使用中我厂定期组织技术、质检人员进行访问,征询用户对产品质量、 使用状况、改进意见等方面的反馈, 以便进一步提高产品质量。
3、对用户投诉质量问题,快速作出反应,售后服务人员在24-36小时(省外48小时)赶赴现场。
4、对售后服务,要求用户填写服务后的质量反馈信息表,并作出鉴定意见,以便提高奇高的服务质量。
1、客户如对产品有特殊要求,须在订货合同中提供以下说明:
a、结构长度;
b、连接形式;
c、公称直径、全通径、缩径、管道尺寸;
d、运行介质及温度、压力范围;
e、试验、检验标准及其他要求
2、本厂可根据客户特定要求配置各类驱动装置。
3、如由客户提供确定的阀门类型和型号时,客户应正确说明其型号的含义和要求,在供需双方理解一致的条件下签订合同。
4、期货、订货的客户请先来电函详细告诉所需的阀门型号、规格、数量以及交货时间、地点,并按总的30%预定金或全额货款及时汇入我厂帐户,其余货款待发货前汇入,以便及时安排发货。
订单流程:
1、客户采购清单传真至021-33872143,或来电咨询 021-33872141
2、收到客户采购清单,为客户提供阀门型号选型与报价(价格清单)。
3、具体商定:交货期、特殊要求等事宜。
订货须知:
1、客户如对产品有特殊要求,须在订货合同中提供以下说明:
|
|||||
|
|||||
2、本厂可根据客户特定要求配置各类驱动装置。
|
|||||
3、如由客户提供确定的阀门类型和型号时,客户应正确说明其型号的含义和要求,在供需双方理解一致的条件下签订合同。
|
|||||
4、期货、订货的客户请先来电函详细告诉所需的阀门型号、规格、数量以及交货时间、地点,并按总的30%预定金或全额货款及时汇入我厂账户, 其余货款待发货前汇入,以便及时安排发货。
|
售中服务:
守信合同,及时供货,随时保持与客户联系。
对特殊或复制的产品,我厂安排技术人员对用户进行产品使用、故障排除
售后服务:
1、“奇高”产品品质期为自出厂起12个月,实行“三包”服务(包退、包换、保修)。
2、产品在使用中我厂定期组织技术、质检人员进行访问,征询用户对产品质量、使用状况、改进意见等方面的反馈,
以便进一步提高产品质量。
3、对用户投诉质量问题,快速作出反应,售后服务人员在24-36小时(省外48小时)赶赴现场。
4、对售后服务,要求用户填写服务后的质量反馈信息表,并作出鉴定意见,以便提高“奇高”的服务质量。
声明 |
|

